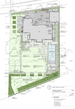
Garten Heine, Herrsching

Proyecto

Proyecto de jardín privado, desarrollado por C.Bücheler Landschaftsarchitekt, donde trabajé en Munich, Alemania

Gran profesor y jefe, me enseñó que la motodología, organización y dedicación, son parte del éxito.